Facebook Icon

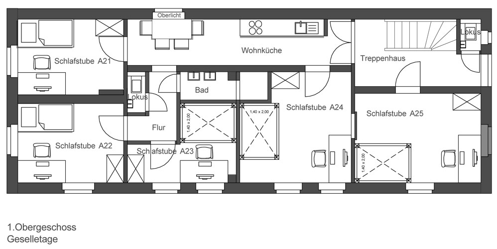
Gesellen-Etage

coming soon

Sie wohnen zu fünft Hinterhaus im Obergeschoss, in unserer Gesellen-Etage.

Allgemeine Wohnungsausstattung: Auch hier ist alles einfacher und ruhiger als im herrschaftlichen Vorderhaus. Diese Etage erreicht man über den rechten Eingang. Es darf bezweifelt werden, dass alle Gesellen zur damaligen Zeit schon eine solch prächtige Wohnungstür hatten. Sie stehen danach unmittelbar im Wohnflur. Ein alter Gründerzeitschrank dient als Garderobe, gegenüber ein großer verzierter Spiegel. Küche, komplett eingerichtet mit Geschirr-Spüler, großem Kühlschrank und Gefrierschrank, Ceran-Kochfeld mit Ofen, Wasserkocher etc., ein Vorratsschrank ist ebenfalls vorhanden, ein alter Tisch und 5 Stühle und ein großer Flachbild-TV. 1 Badezimmer mit Brause und Waschbecken und ein 2. mit Klosett und großem Waschbecken, nicht zu vergessen das Privat-Klosett der Schlafstube 34, sämtliche Böden, ausser in den gefliesten Bädern, mit Originaldielen, Beleuchtungen meistens indirekt und mehrfach. Hohe originalgetreue, 4flüglige Fenster mit 3fach-Verglasung. Die Wohnung hat zudem noch einen eigenen Abstellkeller mit ca. 5 Quadratmetern.

Gesellen-Etage

Allgemeine Schlafstuben-Ausstattung: alle Schlafstuben dieser Etage haben folgende Ausstattungsmerkmale soweit nicht anders vermerkt: 200 x 140 Hochbett (allerdings ohne Matratze – aus Hygienegründen), weißer Lackschreibtisch, dazu passende Wandregale, weißer Wäscheschrank, mehrfache indirekte Beleuchtung, abgeschliffene Dielenböden, Telefon-, TV- und Internetanschluss. Zu jeder Wohnung gehört 1 Quadratmeter Kräutergarten.

Leistungen & Preise

Schlafstube A21 : 118 Quadratmeter gesamte Wohn- und Nutzfläche, davon 82 Quadratmeter gemeinschaftliche Hobbyräume im Keller des Vorderhauses, 26 Quadratmeter gemeinschaftliche Wohnungs- und Abstellflächen und 10 Quadratmeter nur für Sie. Hier ist allerdings das Aufstellen eines 140er Bettes nicht möglich. Daher nur ein 100er Bett, wahlweise auch ein Normalbett statt Hochbett. Schöner Blick in den Garten.
Kaltmiete: 260,00 €

Schlafstube A22 : 118 Quadratmeter gesamte Wohn- und Nutzfläche, davon 82 Quadratmeter gemeinschaftliche Hobbyräume im Keller des Vorderhauses, 26 Quadratmeter gemeinschaftliche Wohnungs- und Abstellflächen und 11 Quadratmeter nur für Sie.
Kaltmiete: 270,00 €

Schlafstube A23 : 119 Quadratmeter gesamte Wohn- und Nutzfläche, davon 82 Quadratmeter gemeinschaftliche Hobbyräume im Keller des Vorderhauses, 26 Quadratmeter gemeinschaftliche Wohnungs- und Abstellflächen und 11 Quadratmeter nur für Sie.
Kaltmiete: 240,00 €

Schlafstube A24 : 119 Quadratmeter gesamte Wohn- und Nutzfläche, davon 82 Quadratmeter gemeinschaftliche Hobbyräume im Keller des Vorderhauses, 26 Quadratmeter gemeinschaftliche Wohnungs- und Abstellflächen und 11 Quadratmeter nur für Sie.
Kaltmiete: 330,00 €

Schlafstube A25 : 123 Quadratmeter gesamte Wohn- und Nutzfläche, davon 82 Quadratmeter gemeinschaftliche Hobbyräume im Keller des Vorderhauses, 26 Quadratmeter gemeinschaftliche Wohnungs- und Abstellflächen und 15 Quadratmeter nur für Sie. Sie wohnen mit eigenem Eingang vom Treppenhaus. Sie benutzen aber auch die Allgemeinräume auf der Etage. Zudem befindet sich aber noch gegenüber im Treppenhaus ein eigenes privates Etagen-Klosett mit Waschbecken.
Kaltmiete: 310,00 €