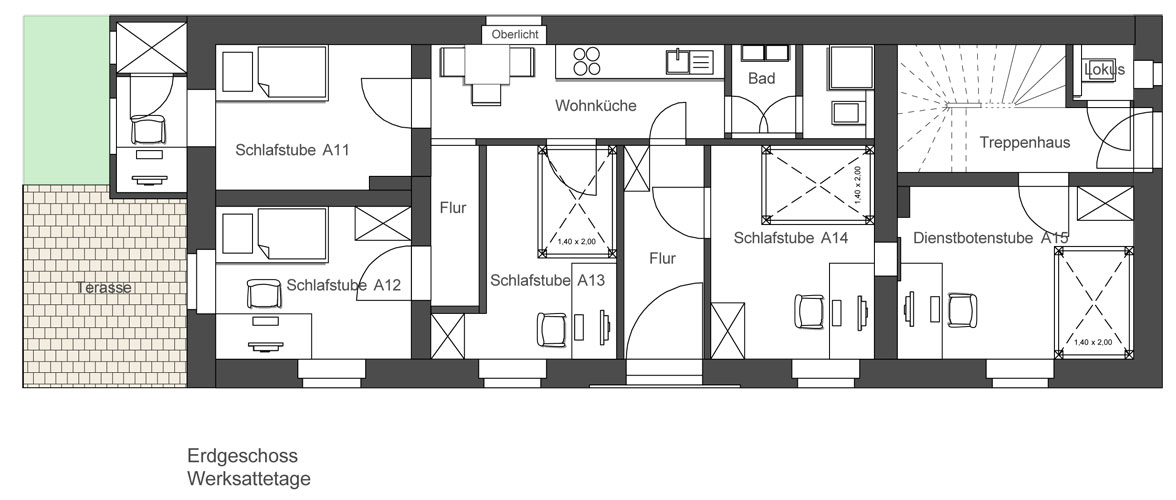
Werkstatt-Etage
Sie wohnen zu viert Hinterhaus im Erdgeschoss, in unserer Werkstatt-Etage.
Allgemeine Wohnungsausstattung: Hier ist alles einfacher als im herrschaftlichen Vorderhaus. Weniger repräsentativ heißt aber auch viel ruhiger, näher am Garten und sogar barrierefrei. Diese Etage hat sogar einen eigenen Eingang. Ein alter Einbauschrank dient als Garderobe, gegenüber ein großer verzierter Spiegel. Küche, komplett eingerichtet mit Geschirr-Spüler, großem Kühlschrank und Gefrierschrank, Ceran-Kochfeld mit Ofen, Wasserkocher etc., Tisch und 4 Stühle und großer Flachbild-TV, Badezimmer mit getrennter, abschließbarer Kabine für Brause und Klosett, davor 2 Waschbecken, sämtliche Böden, ausser in den gefliesten Bädern, mit Originaldielen, Beleuchtungen meistens indirekt und mehrfach. Hohe originalgetreue, 4flüglige Fenster mit 3fach-Verglasung. Die Wohnung hat zudem noch einen eigenen Abstellkeller mit ca. 4 Quadratmetern.
Allgemeine Schlafstuben-Ausstattung: alle Schlafstuben dieser Etage haben folgende Ausstattungsmerkmale soweit nicht anders vermerkt: 200 x 140 Hochbett (allerdings ohne Matratze – aus Hygienegründen), weißer Lackschreibtisch, dazu passende Wandregale, weißer Wäscheschrank, mehrfache indirekte Beleuchtung, abgeschliffene Dielenböden, Telefon-, TV- und Internetanschluss. Zu jeder Wohnung gehört 1 Quadratmeter Kräutergarten.
Leistungen & Preise
Schlafstube A11 : 118 Quadratmeter gesamte Wohn- und Nutzfläche, davon 82 Quadratmeter gemeinschaftliche Hobbyräume im Keller des Vorderhauses, 24 Quadratmeter gemeinschaftliche Wohnungs- und Abstellflächen und 12 Quadratmeter nur für Sie. Hier ist allerdings das Aufstellen eines 140er Bettes nicht möglich. Daher nur ein 100er Bett, wahlweise auch ein Normalbett statt Hochbett. Das Zimmer ist zwar relativ groß, aber auch relativ dunkel. Als Kleiderschrank dient eine alte Kammer nahe am Fenster. Schöner Blick in den Garten.
Kaltmiete: 285,00 €
Schlafstube A12 : 116 Quadratmeter gesamte Wohn- und Nutzfläche, davon 82 Quadratmeter gemeinschaftliche Hobbyräume im Keller des Vorderhauses, 24 Quadratmeter gemeinschaftliche Wohnungs- und Abstellflächen und 10 Quadratmeter nur für Sie.
Kaltmiete: 270,00 €
Schlafstube A13 : 116 Quadratmeter gesamte Wohn- und Nutzfläche, davon 82 Quadratmeter gemeinschaftliche Hobbyräume im Keller des Vorderhauses, 24 Quadratmeter gemeinschaftliche Wohnungs- und Abstellflächen und 10 Quadratmeter nur für Sie.
Kaltmiete: 285,00 €
Schlafstube A14 : 117 Quadratmeter gesamte Wohn- und Nutzfläche, davon 82 Quadratmeter gemeinschaftliche Hobbyräume im Keller des Vorderhauses, 24 Quadratmeter gemeinschaftliche Wohnungs- und Abstellflächen und 11 Quadratmeter nur für Sie.
Kaltmiete: 285,00 €
