Facebook Icon

Das teilen Sie mit allen Bewohnern beider Häuser:

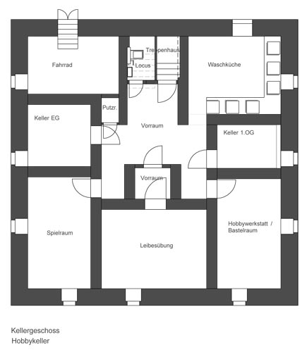
Gemeinschaftsräume - Grundriss

  • Nächtliche Fassadenbeleuchtung der italienischen Palazzo-Fassade
  • Außenbeschriftungen und Außentafel am Haus mit geschichtlichen Daten
  • Raum für Leibesübung mit Tischtennis
  • Raum für Tischfußball, Darts oder ähnliches

 

 

  • Werkraum mit Werkbank und Werkzeugen etc.
  • Waschküche mit 3 Öko-Waschmaschinen und 2 Trocknern
  • Klosett im Keller
  • Zweiradkeller für längere Fahrpausen
  • Abstellkeller für Gemeinschaftsgartenmöbel, Putzmittelraum, Heizungsraum
  • 39 Fahrradstellplätze im Freien
  • Original-Kopfsteinpflaster auf Gehwegen und im Innenhof historische Pflanzkübel